Familien-Haus in Seenähe mit Garage und großem Garten inmitten des malerischen Leineberglands
Objektbeschreibung
Leben in der Natur – hier wartet Ihre Freizeitoase: Sie suchen ein schönes Zuhause, auf einem weitläufigen Grundstück? In welchem Ihre Kinder unbeschwert toben und zelten können oder das Ihren Tieren viel Freilauf bietet? Sie starten in den neuen Tag mit einem Spaziergang in der wunderschönen Umgebung des Leinetals und als Nachbarn der malerischen Seen sind sie Nutznießer von Vereinbarungen zum Spazierengehen und Verweilen direkt am Seeufer. Beenden Sie den Tag abends kuschelig am Kamin oder an der Feuerschale im großen Garten.
Das massiv erbaute Haus bietet auf zwei Etagen diverse Möglichkeiten, ihm einen eigenen Charakter zu verleihen und es nach individuellen Wünschen zu gestalten. Ein großzügiges Wohnzimmer mit fließenden Übergängen zum einladenden Esszimmer und zur Küche bilden das Herzstück des Erdgeschosses. Im Wohnzimmer wartet ein angeschlossener Kaminofen besonders an kühlen Abenden darauf, Ihnen das Gefühl von wohliger Geborgenheit zu vermitteln. Auf dieser Etage wurde außerdem ein modernes Bad mit großer bodentiefer Dusche geschaffen. Ein separater Raum für ungestörtes Home-Office und ein weiteres Zimmer runden das gute Platzangebot auf dieser Etage ab.
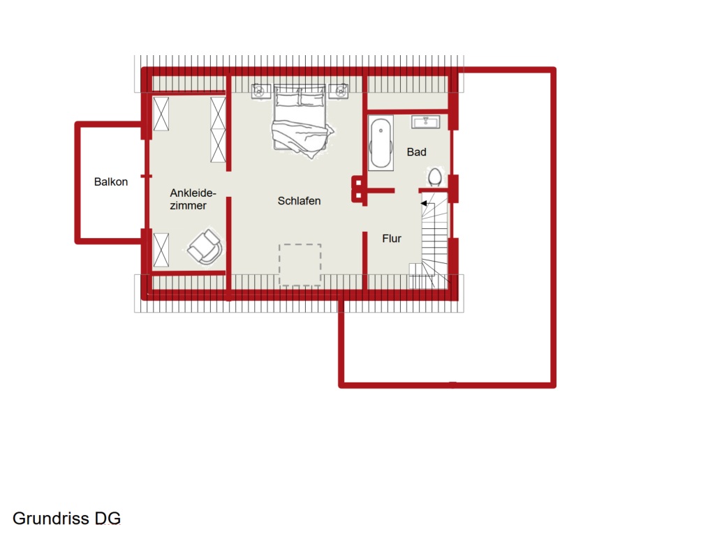
Eine Treppe mit massiven Eichenstufen führt in die obere Etage, welche mit einem separaten Bad und einem lichtdurchfluteten Schlafzimmer überzeugt. Ein weiteres angrenzendes Zimmer kann als Ankleidebereich oder Kinderzimmer genutzt werden. Ein nach Süden ausgerichteter Balkon bildet hier den Abschluss mit einem malerischen Ausblick ins Leinetal.
Das Haupthaus aus dem Jahr 1949 wurde 1960 und 1974 erweitert, so dass heute eine Wohnfläche von ca. 138m² mit 6 Zimmern zur Verfügung steht. Der Zustand ist gepflegt und das Haus wartet darauf, dass hier wieder frisches Leben einkehrt.
DER AUSBLICK
Von dem südlich ausgerichteten Balkon und vom Schlafzimmer haben Sie einen wunderschönen Ausblick in die Natur des Leineberglands und den an das Grundstück angrenzenden Angelteich.
DIE TECHNIK
Die Elektrik wurde 2003/2004 erneuert. Eine Zentralheizung der Marke Viessmann versorgt das Haus mit Wärme. Hochgeschwindigkeits-DSL ist verfügbar.
GARTEN
Der große, familienfreundliche Garten bietet mit seinen Bäumen allerlei Platz zur Entfaltung und Entspannung. Zudem befinden sich sowohl ein Gewächshaus mit Hochbeeten, als auch ein separat angebauter Partyraum mit Bar auf dem Grundstück.
EXTRAS
Eine Einzelgarage und ein Holzschuppen, sind vorhanden. Die Garageneinfahrt sowie die Zuwegung zum Haus bieten weiteren Fahrzeugen Platz. Die Fenster verfügen über Außenrollläden und die Fassade nebst oberer Geschossdecke sind gedämmt. Das Haus ist komplett unterkellert. An Raum zur kreativen Entfaltung, für Werkstatt und Hobby ist also genug Platz. Die nah gelegene Stadt mit Kindergärten, Schulen und Bahnhof ist durch die Anbindung zur B3, als auch durch einen kurzen Fußweg zur Bushaltestelle schnell erreichbar.
Ausstattung
– Baujahr 1949, Anbauten 1960 und 1974
– Massivbau
– Ca. 138 m² Wohnfläche zzgl. weiterer Nutzflächen im Keller, im Nebengebäude (Partyraum) und Garage
– 6 Zimmer
– 6 cm WDVS (2021)
– Außenrollläden
– Dachterrasse
– Vollkeller
– Partyraum
– Großer Garten mit Gewächshaus und Hochbeeten
– 1 Garage und 1 weiterer Stellplatz
– Anliegerstraße mit wenig Verkehr
– Zentrale Lage zwischen Alfeld und Elze
| Kaufpreis: | 210.000 EUR |
| Provision für Käufer: | 3,00% |
| Provision für Verkäufer: | 3,00% |
| Energietyp: | Bedarfsasuweis |
| Dachform: | Satteldach |
| Zimmer: | 6 |
| Badezimmer: | 2 |
| Wohnfläche: | 138 m² |
| Grundstücksfläche: | 1482 m² |
| Baujahr: | 1949-1974 |
| Objektzustand: | gepflegt |
| Heizungsart: | Zentralheizung |
| Befeuerungsart: | Öl |
| Baujahr lt. Energieausweis: | 1992 |
| Energieeffizienzklasse: | F |
| Wert des Endenergiebedarfs: | 189,41 |
| Art des Energieausweises: | Bedarfsausweis |
- Energieausweis
Energieausweis - Expose_Godenau_lang
Expose_Godenau_lang





































